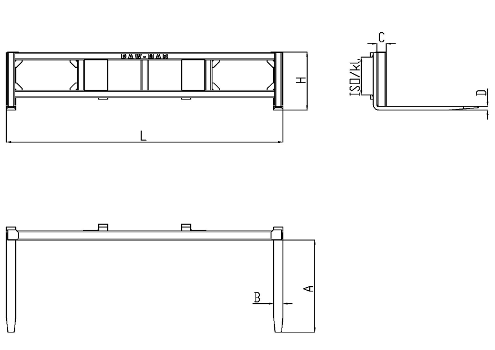
Trawersa na karetkę wózka widłowego Typ TW-K
Trawersa przeznaczona do współpracy z wózkiem widłowym i mocowana jest na karetce wózka widłowego.
Trawersa przystosowana jest do transportu elementów o dużej szerokości.Możliwość wykonania trawersy o innych parametrach po uzgodnieniu z wykonawcą.
| Typ | DOR w kg | ISO/kl | L | A | B | C | D | H | Waga w kg |
| TW-K 1,5/3 | 1500 | II | 3000 | 1000 | 100 | 100 | 40 | 585 | 260 |
| TW-K 2,5/3 | 2500 | II | 3000 | 1000 | 120 | 120 | 50 | 625 | 320 |
| TW-K 3,5/3 | 3500 | III | 3000 | 1000 | 120 | 120 | 50 | 730 |
383 |





